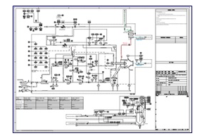
Offriamo supporto per l'Ingegneria di Layout / Ingegneria di Piping per EPC e industrie di processo, coprendo tutte le fasi dalla comprensione dei P&ID alla progettazione e al tracciamento delle tubazioni, all'analisi delle sollecitazioni e infine ai disegni.

Aree: Tubazioni pulite per le industrie farmaceutiche, lattiero-casearie e alimentari. Linee critiche relative alle industrie del petrolio e del gas e della petrochimica, tubazioni di processo per le industrie chimiche e dell'acqua/acque reflue.

Codici/Norme: ASME, ASTM, DIN, EN, API, altri codici applicabili

Engineering Support:

  • Preparazione del Layout dell'Attrezzatura e integrazione degli articoli acquistati nelle tubazioni
  • Progettazione delle tubazioni secondo i codici internazionali applicabili
  • Progettazione e dettagliatura delle passerelle per tubazioni
  • Calcoli di rigidità e validazione delle tubazioni, supporti strutturali.
  • Analisi delle sollecitazioni delle tubazioni
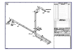
  • Progettazione, ingegneria dettagliata e verifica di grandi condotti/spools e strutture di supporto
  • Modellazione 3D, instradamento, selezione e progettazione dei supporti facendo riferimento a PFD, P&ID, disegno di base, specifiche di progetto
  • Disegni 2D – Isometrici, disegno GA, disegni dettagliati delle parti, disegni di officina/fabbricazione, distinta base (BOM)
Enquiry